Interior

Affordable Homes of Cochise County
Affordable homes at your fingertips
Get started with Affordable Homes of Cochise County
Find, design, and order your next home in a few clicks.
Dealer License #:
Enter your address or APN to check if this home fits on your property
Enter your property street address or APN
Exterior
Kitchen
Bathroom
Construction
Images of homes are solely for illustrative purposes and should not be relied upon. Images may not accurately represent the actual condition of a home as constructed, and may contain options which are not standard on all homes.
$74K
$420/mo
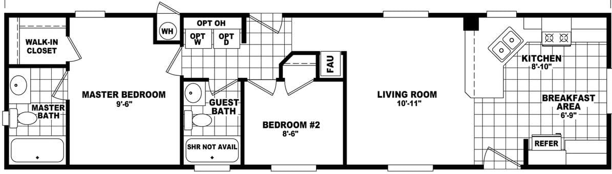
2 Bed | 2 Bath | 746 Sq. Ft. | 13' 4" x 56'
$77K
$437/mo
2 Bed | 2 Bath | 693 Sq. Ft. | 13' 4" x 52'
$80K
$455/mo
2 Bed | 2 Bath | 800 Sq. Ft. | 13' 4" x 60'