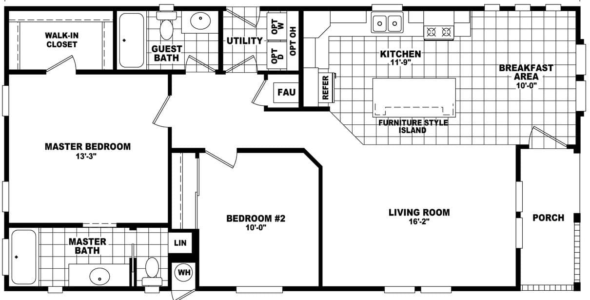
Homes | Westin Porch 24482A