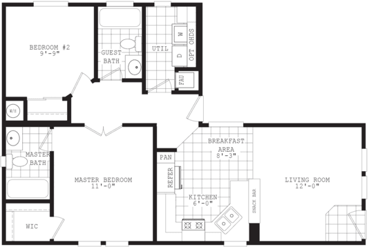
Homes | Wide Homes 20402B