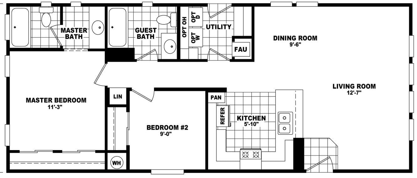
Homes | Wide Homes 20482A