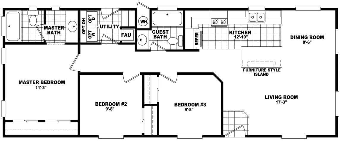
Homes | Wide Homes 20523A