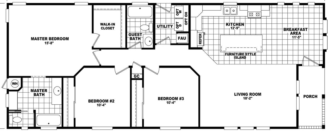
Homes | Westin Porch 24603A