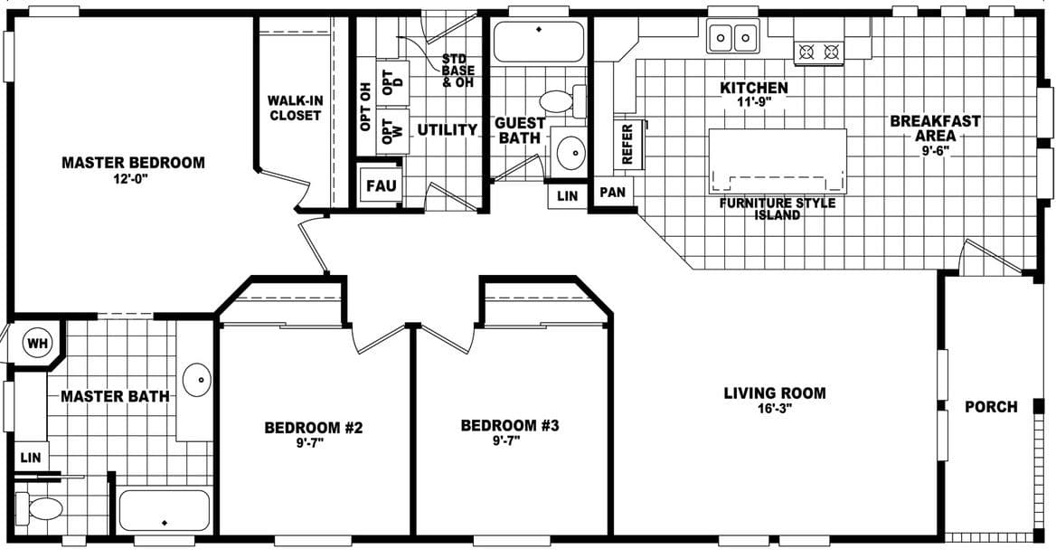
Homes | Westin Porch 28523A